Jacqueline Millar

REALTOR®

193 Bloor Street W Oshawa, Ontario L1J 1P5

700 - 1,100 ft2

$1,150,000

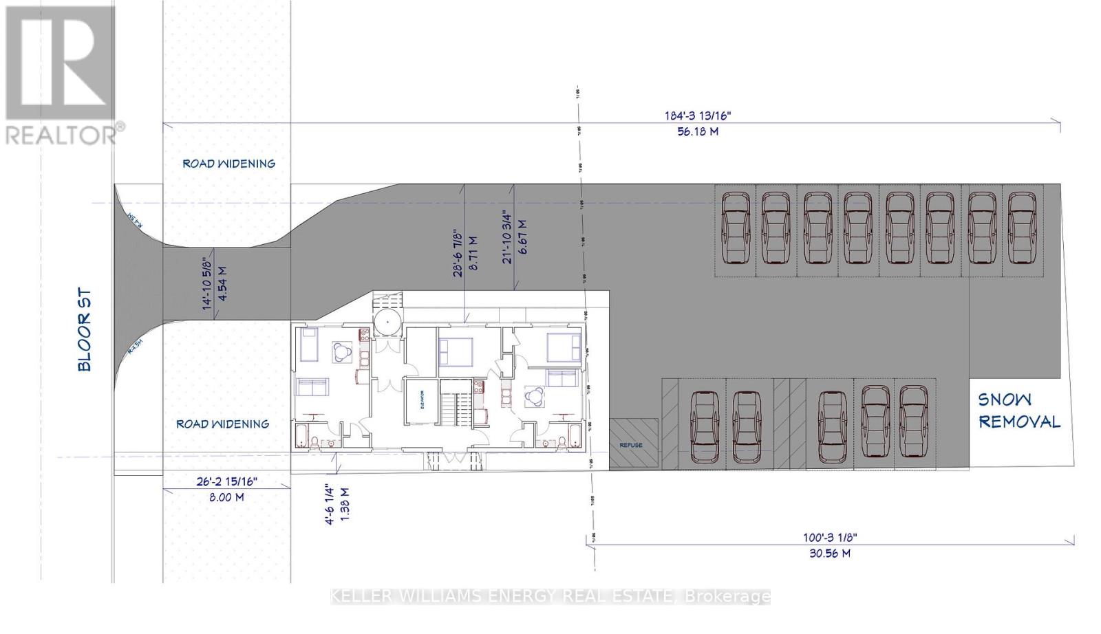
Location, Location, Location! Huge Opportunity To Hold For Future Investment Or Development. With R6-C Zoning Develop Into An Apartment Building, Long Term Care Facility, Nursing Home Or Retirement Home. Surrounded By Large High Rise Multi-family Properties. Currently Used As A 2 Bedroom, 2 Bathroom Home With 2nd Floor Bonus Room. Survey And Topographical Map Available. **EXTRAS** Detached garage with power, newer gas furnace, 200 Amp service. Sold as-is-where-is. Some renovations required to make existing structure liveable. (id:60825)

Property Details

MLS® Number E12030060
Property Type Vacant Land
Neigbourhood Lakeview
Community Name Lakeview

Building

Size Interior 700 - 1,100 Ft2
Utility Water Municipal Water

Parking

Detached Garage
Garage

Land

Acreage No
Sewer Sanitary Sewer
Size Depth 186 Ft ,9 In
Size Frontage 59 Ft ,10 In
Size Irregular 59.9 X 186.8 Ft
Size Total Text 59.9 X 186.8 Ft|under 1/2 Acre

Utilities

Cable Available
Electricity Available
Sewer Installed

https://www.realtor.ca/real-estate/28048092/193-bloor-street-w-oshawa-lakeview-lakeview

Contact Us

Contact us for more information

Generating Captcha

Stephen Jones
Salesperson

(905) 706-2517
www.bluelinerealestategroup.com/

Keller Williams Energy Real Estate
285 Taunton Road East Unit: 1
Oshawa, Ontario L1G 3V2

(905) 723-5944
www.kellerwilliamsenergy.ca/

Your Favourites

 

No Favourites Found